dit Appartement is verhuurd Tolhuis 27e Straat in Nijmegen

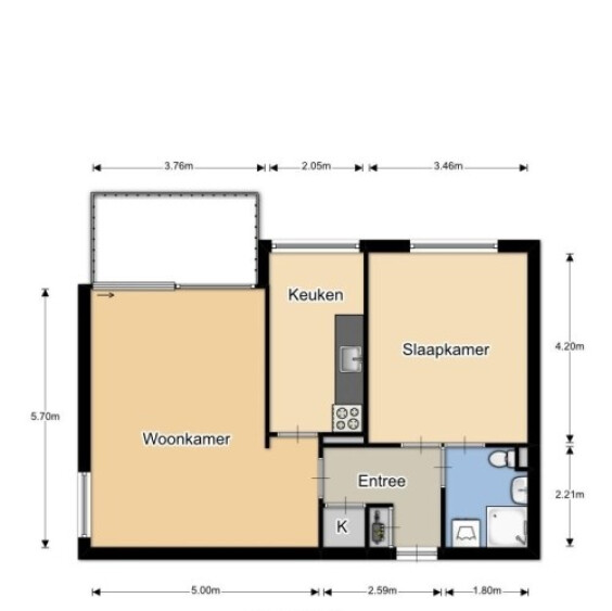
  • 57 m2
  • 2 kamers
  • ? Begindatum
  • Onbepaalde tijd
Op deze pagina vind je alle informatie over dit Appartement in Nijmegen. Als je vragen hebt kun je contact opnemen met de aanbieder.

Nee

Direct bij de eigenaar

Borg
870

Garantiestelling
Niet mogelijk

Huurtoeslag
Mogelijk

Inkomen eis
N.V.T.

Huurtermijn
Onbepaalde termijn

Oplevering
Kaal

MEER

Algemene informatie

Stad Nijmegen
Wijk/buurt: Tolhuis
Inschrijven gemeente: Ja
Opleverniveau: Kaal
Huisgenoten: Geen
Begindatum: Vraag de adverteerder
Bezichtiging In overleg

Faciliteiten

Eigen badkamer
Eigen keuken
Eigen toilet
Eigen voordeur
Vraag de adverteerder
Vraag de adverteerder
Eigen woonkamer
Tonen op kaart