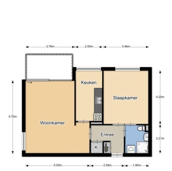
Apartment for rent: no longer available Tolhuis in Nijmegen

  • 57 m2
  • 2 rooms
  • ? Starting date
  • Indefinite period
On this page you will find all information of this Apartment in Nijmegen. You can contact the advertiser if you have any questions.

Bemiddelingskosten
Nee
Object
Direct bij de eigenaar
Borg
810
Garantiestelling
Niet mogelijk
Huurtoeslag
Mogelijk
Inkomen eis
N.V.T.
Huurtermijn
Onbepaalde termijn
Oplevering
Kaal

MORE

General information

City Nijmegen
District/Neighbourhood: Anders
Register municipality: Yes
Status: Unfurnished
Housemates: None
Starting date: Ask the advertiser
Viewing In Consultation

Facilities

Private bathroom
Private kitchen
Private toilet
Private front door
Ask the advertiser
Ask the advertiser
Private living room
Show on map